Többféle hasznosításra lakás, kiváló helyen!!-Debrecenben

939 Nyomtatás Ajánlás Facebook

Kedves Befektető!

Jelenleg 4 apartman (10-25 m2) üzemel az ingatlanban, de a folytatás már a Te fantáziádra van bízva: a kialakítás és a lokáció miatt többféle hasznosítási irány is reális (további kiadás, átalakítás 1 nagy lakássá vagy akár 2 lakássá, lakás + vállalkozás kombináció stb.).

Ami adott: 1920-as években épült tégla falazatú, masszív épületben:

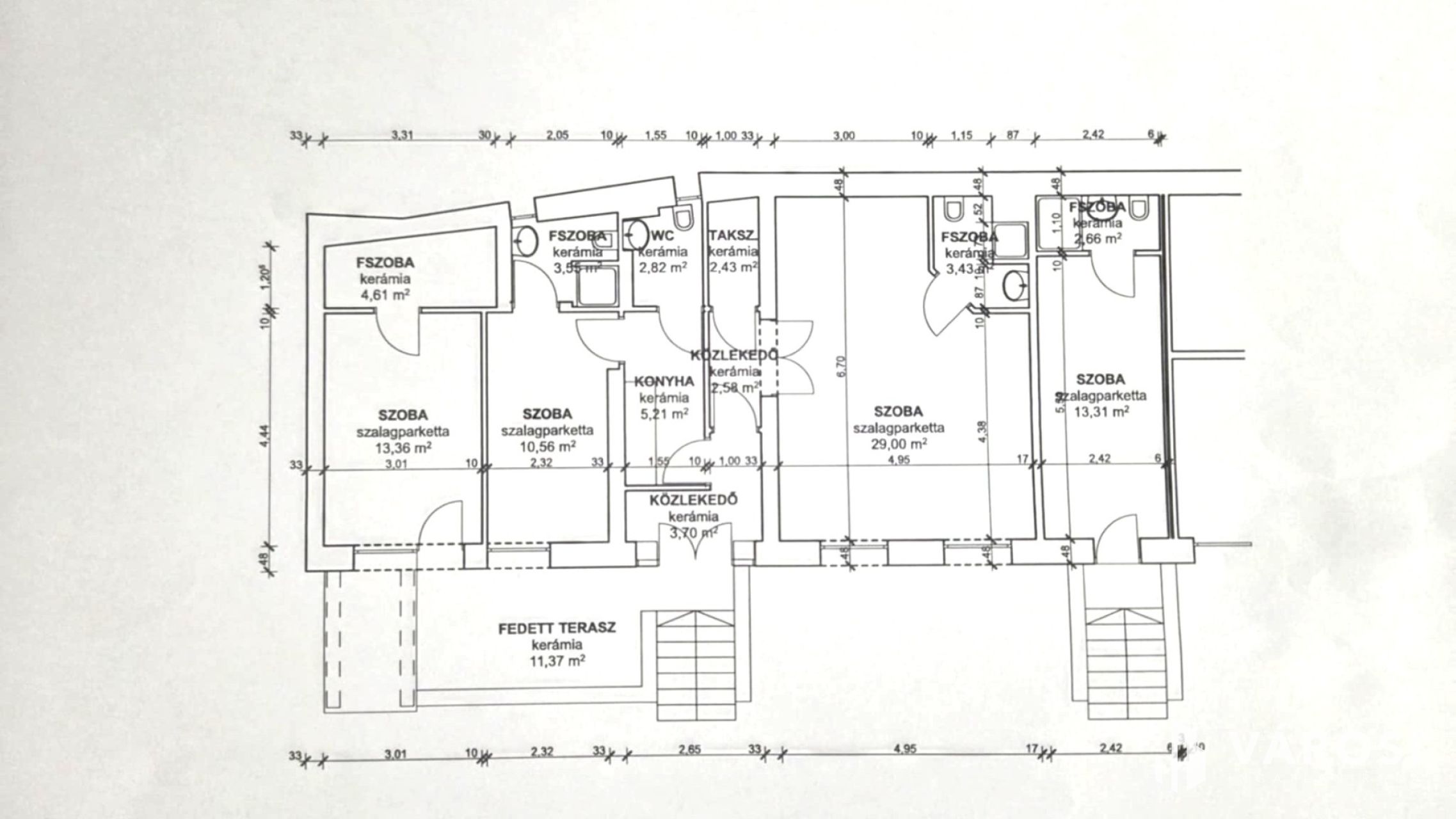
-Földszint: 97 m² lakótér
-gázcirkó fűtés,
-klímák,
-11 m2 terasz,
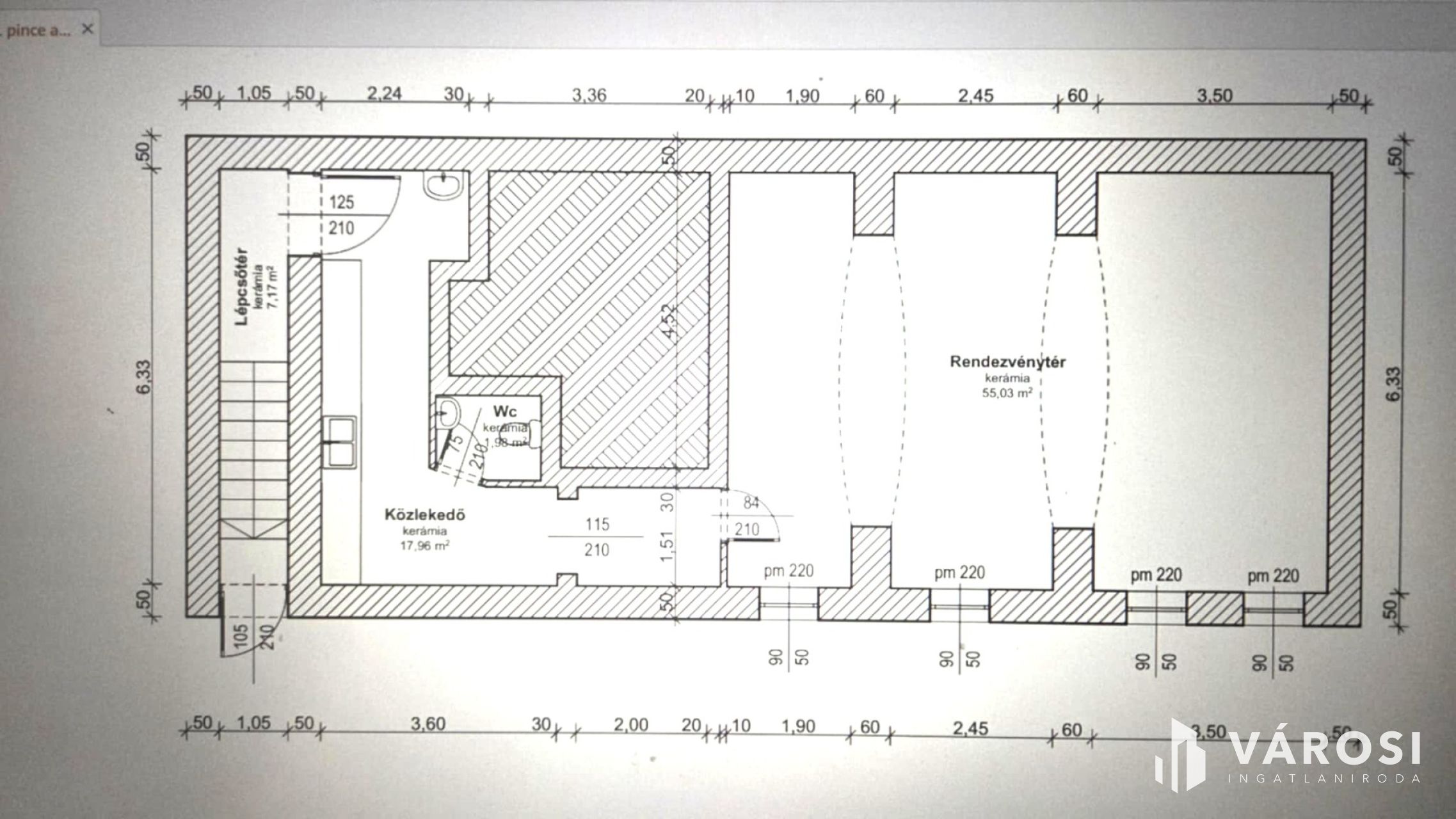
-Pince: 84 m² , eredetileg rendezvénytérnek tervezett helyiség (jelenleg más funkcióval használva)

Udvarban:
-3 garázs
- fedett tároló
-Kocsibeállók (több autó számára)

-Belvárosi ritkaság: parkolás + tárolási/üzemeltetési lehetőségek egy helyen

-Lokáció: valóban kiemelkedő – Debrecen belvárosában, a pláza szomszédságában, minden szolgáltatás pár percre, kiváló közlekedéssel. További információk, vagy megtekintés: Kresznóczki Ágnes +36 20 312 65 19 Városi Ingatlaniroda

Kresznóczki Ágnes

Kresznóczki Ágnes

Ingatlanértékesítő
Debrecen
+36 (20) 312 6519
Észrevétel a hirdetéssel kapcsolatban
Egy ingatlanos naplója