Több lehetőség egy ingatlanban a Várfürdő közelében

6660 Nyomtatás Ajánlás Facebook

Több lehetőség: családi ház, apartman vagy cukrászda? Az lesz amit Ön szeretne, ebben az ingatlanban bármelyik megvalósítható, akár egyszerre is!

Gyulán a Nagyrománvároson eladóvá vált egy tágas telken található kétszintes családi ház és a mögötte évtizedeken keresztül sikeresen működtetett cukrászda.
A ház paraméterei: 1980-ban épült, beton lábazattal, tégla falazattal, beton koszorúval. A ház alapterülete 114 nm, melyben 2 fürdőszoba, tágas konyha, napfényes nappali és hálóhelyiségek is helyet kaptak, az egyedi kialakítású galériára egy nagyon igényes, szép állapotú tölgyfa lépcső vezet. Az emeleti részen egy nagy méretű terasz is helyet kapott, mely a megerősített födémszerkezetnek köszönhetően akár be is építhető. Nagyon masszív szerkezetű ingatlan, mely jól alakítható, így akár családi házként, akár apartmanként vagy vendégházként is hasznosítható, hiszen a Várfürdőtől mindössze néhány perces sétára található. A ház fűtéséről gázkazánról működtetett radiátorok gondoskodnak. Az ingatlanban a 2021-ben új kombikazáw került beszerelésre, emellett lehetőség van vegyes tüzelésű kazán beüzemelésére is. A ház áramellátása 3x25 A.
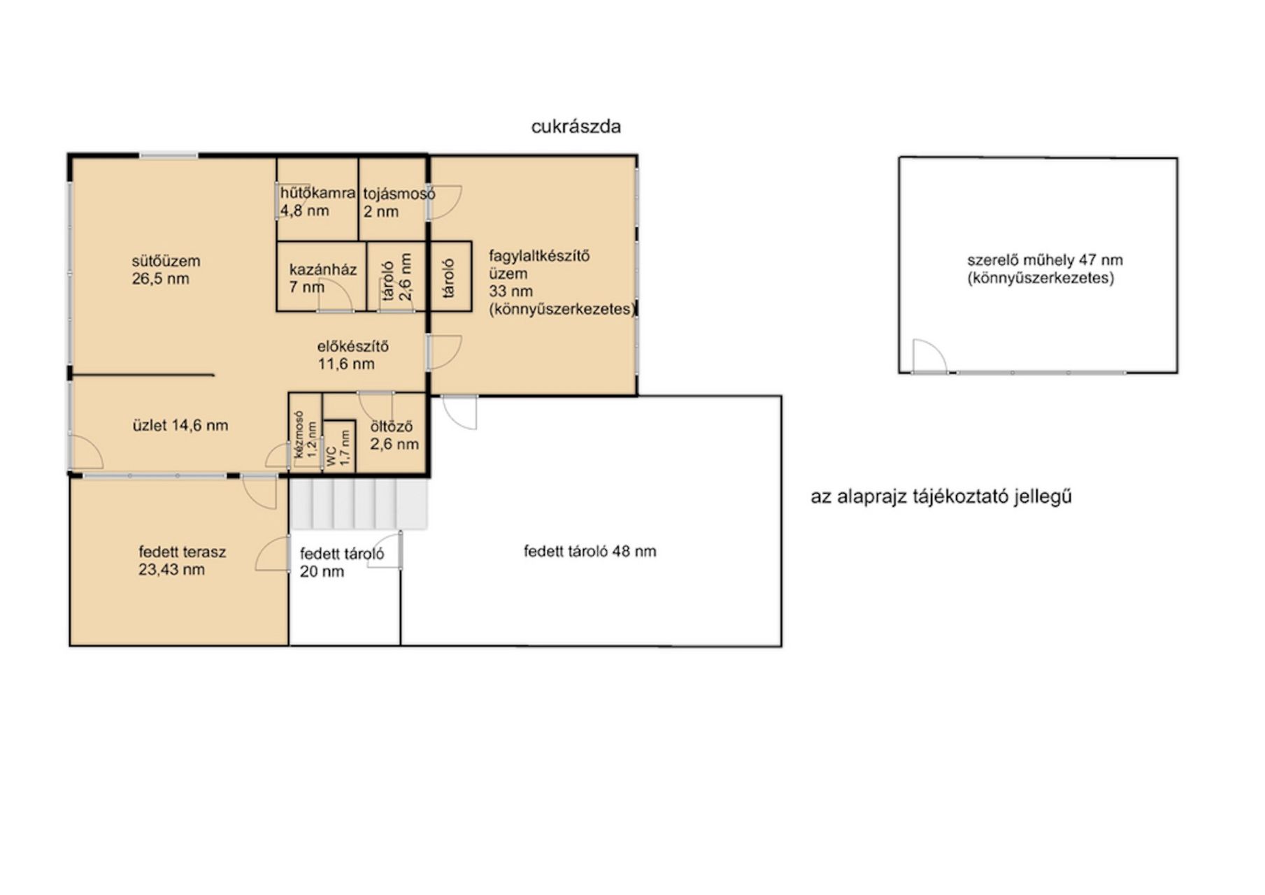
A cukrászda szintén beton lábazatú, tégla falazatú, alapterülete 248 nm, melyben az üzlet mellett, előkészítő és sütő részleg, nagy méretű, hőszigetelt hűtőkamra, tojásmosó és fagylaltkészítő műhely is helyet kapott. A cukrászda mellett fedett terasz és több nagy méretű fedett tároló is helyet kapott. Az épület betonfödémmel rendelkezik, így lehetőség van a tetőtér beépítésére, mely külső lépcsőről megközelíthető, így további cca. 60 nm beépítésére nyílik lehetőség. A cukrászdában 2024-ben lett cserélve a villanyóra, ebben az épületrészben az áramellátás 3x80 A. Emellett a vízmelegítő bojlerek áramellátása külön mérőóráról biztosított, melynek erőssége 3x25 A.
A telek alapterülete 671 nm, melyen egy fúrott kút mellett számos fedett és zárt tároló is helyet kapott, így a gépjármű tárolása is megoldott.
Vállalkozzon Békés megye egyik legszebb városában, itt minden feltétel adott hozzá!
Hívjon és nézzük meg együtt ezt a különleges adottságokkal rendelkező ingatlant!

Dr. Folczné Szentléleki Enikő
PRÉMIUM

Dr. Folczné Szentléleki Enikő

Karrierigazgató
Gyula
+36 (20) 392 2660
Észrevétel a hirdetéssel kapcsolatban
Egy ingatlanos naplója