Lehetőségekben gazdag ház Szigethalmon

305 Nyomtatás Ajánlás Facebook

Eladó ez a lehetőségekben gazdag családi ház Szigethalom frekventált részén!

Főbb jellemzők:
- Telek méret: 769 m2
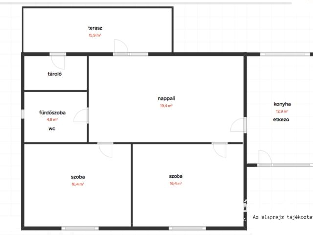
- Lakótér: 73 m2
- Fedett terasz: 15,9 m2
- Szabadon álló épület, nincs falszomszédja
- Falazat: tégla
- Fa és műanyag nyílászárók
- Fűtésrendszer: Gáz cirkó - radiátoros hőleadás
- Jó elosztás, élhető terek
- 2 bejárattal rendelkezik (konyha felől, terasz felől)
- Tágas, külön bejáratú hálószobák
- Tároló
- Redőnyözött ablakok
- Nagy udvar

Parkolás:
- Udvaron több autó számára parkolási lehetőség

Elhelyezkedés:
- Szigethalom frekventált kertvárosi övezetében

Közlekedés:
- HÉV -buszmegálló a közelben
- M0 körgyűrű 10 perc alatt elérhető

Ha kérdése merülne fel vagy szeretné megtekinteni az ingatlant, forduljon hozzám bizalommal!

Kérésre külső képeket is tudok küldeni az ingatlanról. Igény esetén kérem jelezze nekem!

Pálvölgyi Miklós

Pálvölgyi Miklós

Ingatlanértékesítő
Szigethalom
+36 (70) 426 3163
Észrevétel a hirdetéssel kapcsolatban
Egy ingatlanos naplója