Kiszombori fantasztikus családi ház!!!

5460 Nyomtatás Ajánlás Facebook

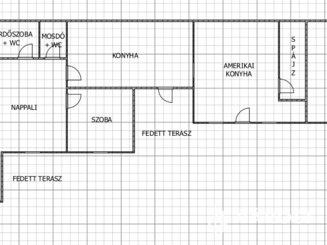
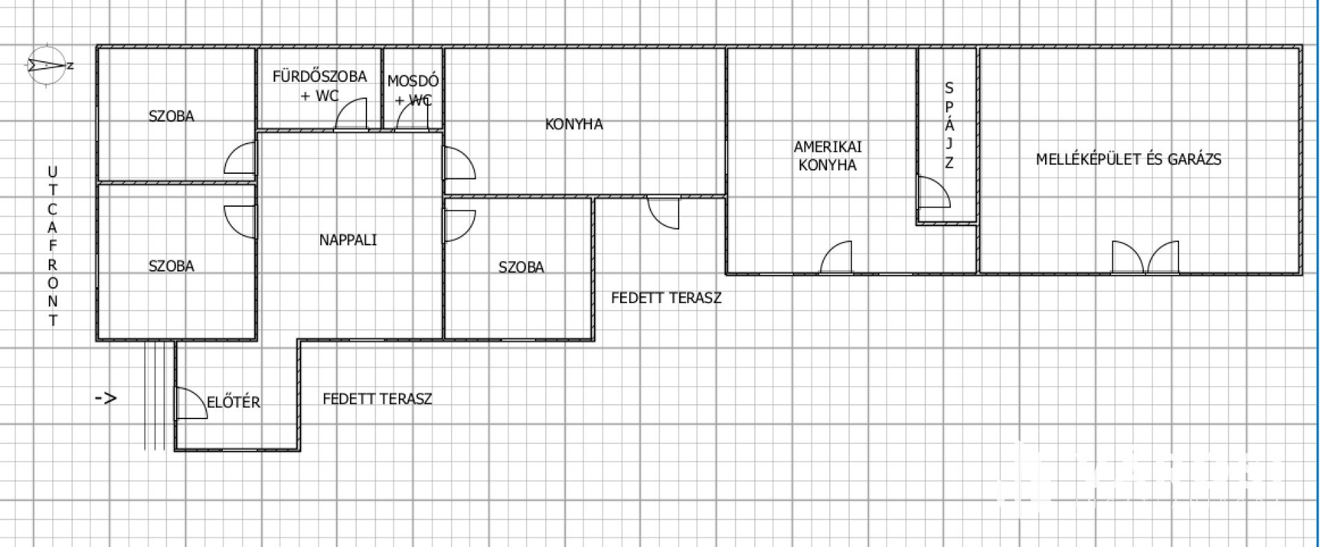
Kiszomboron kínálom eladásra ezt a hatalmas, minden igényt kielégítő, luxus felszereltségű családi házat, melyhez garázs, kazánház, melléképület és méretes telek is tartozik. Csendes utcában található, mégis közel a központhoz. Minden nyílászáró hőszigetelt, a fűtésről gáz cirkó kazán gondoskodik, radiátorokkal. A házban 5 db klíma berendezés biztosítja a nyári hűvöset, de alternatív fűtésként is választható. A 170 négyzetméteres házban 3 db hálószoba, egy nappali, 2 db konyha, spájz, valamint 2 db fürdőszoba található. A kiváló elrendezésének köszönhetően akár még egy lakrész is könnyedén kialakítható a mellette lévő melléképületből. Luxus, prémium anyagok.

További kérdéseivel forduljon hozzám bizalommal!
Horváth Zsolt
+36 (30) 463 1474

Horváth Zsolt
PRÉMIUM

Horváth Zsolt

Ingatlanértékesítő
Hódmezővásárhely
+36 (30) 463 1474
Észrevétel a hirdetéssel kapcsolatban
Egy ingatlanos naplója