Kiadó telephely kisebb-nagyobb épületei

20 Nyomtatás Ajánlás Facebook

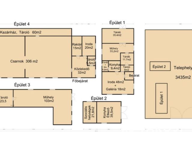
Nagykanizsa Déli városrészében, Ipari Övezetben vált kiadóvá, ez a közel 3500m2-es Ipari ingatlan.
Az udvarban 4 fő épület található, melyek mind külön bejárattal rendelkeznek. (Összterületük megközelítőleg 800m2.)
A telek hátsó szegmensében kisebb tárolók és fedett helységek is megtalálhatók.
A hirdetésben szereplő alaprajzon található épületek külön-külön is bérbe vehetők.
Minden épült saját közművel rendelkezik.
Bérleti díj: 1200 Ft /m2 + Áfa
Ha Ön szeretne kisebb vagy nagyobb épületet akár tárolási, akár üzleti célra bérelni, akkor ez az ingatlan kiváló választás lehet.

Hohl József
PRÉMIUM

Hohl József

10 éve a Városi Ingatlaniroda tagja
Régióigazgató
Nagykanizsa
+36 (30) 608 6857
Észrevétel a hirdetéssel kapcsolatban
Egy ingatlanos naplója