Karancsalja legjobb utcájában, 3 szintes családi ház eladó!

7002 Nyomtatás Ajánlás Facebook

Salgótarjántól mindössze 5 perc autóútra eladó, Karancsalja közkedvelt részén, egy kiváló adottságokkal rendelkező, 241 nm hasznos alapterületű, 4 szobás, önálló családi ház.

Az ingatlan egy 1769 nm-es, téglalap alakú telken helyezkedik el, csendes, családbarát környezetben, mégis minden fontos szolgáltatás – iskola, óvoda, bevásárlási lehetőség – könnyedén elérhető a közelben.

A ház több szinten helyezkedik el, jól átgondolt, élhető és praktikus belső elrendezéssel, amely akár többgenerációs együttélésre vagy otthoni vállalkozás működtetésére is ideális lehet.

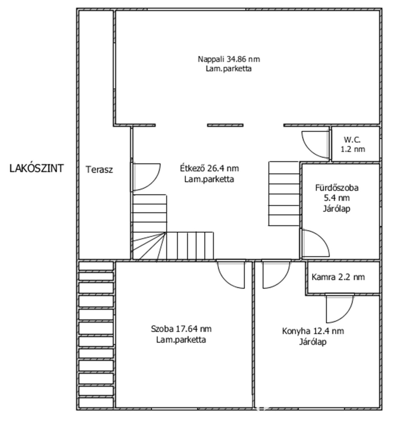
A lakótér összesen 4 szobából áll: tágas nappali és három külön nyíló hálószoba biztosít kényelmet, emellett fürdőszoba, egy külön nyíló mellékhelyiség is található az ingatlanban.

A pinceszinten helyet kapott egy 28 nm-es, fűtött garázs, amely egy nagyobb méretű autó számára is kényelmes parkolást biztosít. A szinten emellett több tárolóhelyiség és kazánház található.

A földszinten a nappali, hálószoba, fürdőszoba, étkező, konyha és kamra került kialakításra.

Az emeleti szinten két kényelmes hálószoba,és egy előtér-közlekedő kapott helyet.

A ház műszakilag jó állapotú, szerkezete stabil és masszív. Porotherm 38-as téglából épült, 10 cm külső hőszigeteléssel, amely hozzájárul az energiatakarékos fenntartáshoz. A nyílászárók korszerű, hő- és hangszigetelt műanyag ablakok. A fűtést és a meleg víz ellátást egy gáz kombi cirkó kazán biztosítja, de alternatív megoldásként vegyes tüzelésű kazán és kandalló is rendelkezésre áll, így a fűtési rendszer rugalmasan használható.

A ház 1990-ben épült, jó állapotú, azonban igény szerint kisebb esztétikai felújítás szükséges lehet.

A kert rendezett, kellemes hangulatú, amely nyugodt, pihentető légkört teremt a kertben töltött időhöz. A garázs mellett, a ház utcafronti részén egy kocsibeálló is található, amely további két autó számára biztosít kényelmes parkolást.

Ez az otthon ideális választás lehet nagycsaládosok számára, többgenerációs együttéléshez, vagy olyanoknak, akik külön bejáratú lakrészt keresnek otthoni vállalkozáshoz.

A ház tágas, jól kihasználható, a környék csendes, mégis jól ellátott – mindössze 5 perc távolságra Salgótarjántól.

A ház a falusi CSOK paramétereinek megfelel.

A ház per-és tehermentes, a további részletekért kérem hívjon.

Tatár Tamás
PRÉMIUM

Tatár Tamás

8 éve a Városi Ingatlaniroda tagja
Régióigazgató
Salgótarján
+36 (70) 439 8123
Észrevétel a hirdetéssel kapcsolatban
Egy ingatlanos naplója