Gyönyörű, kertkapcsolatos otthon, lehetőségekkel.

18871 Nyomtatás Ajánlás Facebook

Álomotthon kertkapcsolat koncepcióval.

Eladásra kínálunk egy egyedülálló, modern kialakítású otthont, mely tökéletesen megfelel a mai igényeknek.
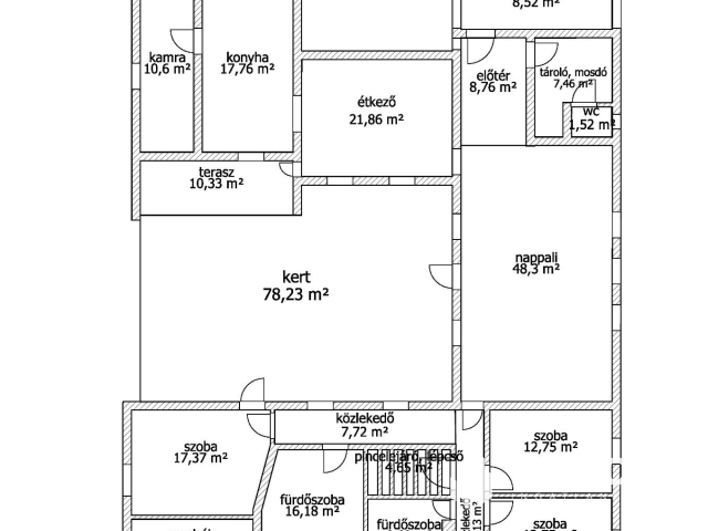
A kertkapcsolatos otthon rendkívül tágas, azonban mégis melegséget hordoz magában. A ház központi része, a különleges hangulatú nappali, melynek fűtéséről a családi ház központi eleme , egy egyedileg készített kandalló gondoskodik. Innen nyílnak a konyha , étkező, kamra helyiségek. A vizes helyiségek kerámia, az egyéb helyiségek hajópadló burkolatot kaptak.
A másik szárnyban épültek a hálószobák és a hatalmas fürdőszobák is. A családi ház teljesen körül ölel egy kis hangulatos kertrészt, mely minden égtáj felől megközelíthető közvetlenül a helyiségekből. A kertben helyet kapott egy családi főzésekre kiválóan alkalmas terasz, búbos kemencével. A családi ház tökéletes harmóniában van az őt körülvevő növényekkel.
Ugye már Ön is elképzelte magát, a hintaágyban?

Az otthonnak nem csak csodás hangulata, de egyedülálló felszereltsége is van. A ház prémium anyagok felhasználásával lett megépítve.

Az ingatlan adottságai, felszereltsége:
Több épületegységből áll.

Főépület:
Fűtés: - központi gázfűtés, radiátor hőleadókkal
- hidegburkolattal ellátott helyiségekben
padlófűtés
- szilárd tüzelésű kazán rákötve a központi rendszerre
- nappaliban kandalló
Hűtés: - klíma ( 2db hütő-fűtő klíma)
Áramellátás: - három fázis, 96 A A konyhában villany és gáz ellátású tűzhely is helyet kapott. Minden vízvételi lehetőségnél villanybojler biztosítja a melegvizet. A teljes lakótérben falra szerelt rejtett világítás lett kialakítva. Csillár csak az étkezőben lett felszerelve.
A gépészet a pincében található.
Pince:
Fűthető helyiségek, melyek akár lakótérként is funkcionálhatnak. Belmagassága 2m.

A családi házzal együtt rendelkezésre áll, eladó egy jelenleg street food étteremként funkciónáló pajta jellegű épület, tégla főépületrésszel, melynek területe 100 m2, valamint egy komplett épületegyüttes , mely jelenleg húsfeldolgozásra alkalmas.
A több épületből álló egység tartalmaz :
- étterem
- 2 db hűtőkamra
- 2 db füstölő (hideg , meleg)
- klimatizált feldolgozóhelyiség
- tárolók
- fedett terasz rész

Az ingatlan speciális, azonban több lehetőséget kínál, akár több generációnak is. Beszéljük meg telefonon, személyesen.
Amennyiben felkeltette érdeklődését, hívjon! A leírásban igen, de a képek között nem szereplő helyiségekről komoly érdeklődés esetén egyeztetést követően tudunk képet küldeni. A ingatlan ára a teljes felszereltséget, berendezést magában foglalja, kivéve néhány személyes dolgot.

Bagi Tamás
+36 30 880 3888

Bagi Tamás
PRÉMIUM

Bagi Tamás

5 éve a Városi Ingatlaniroda tagja
Ingatlanértékesítő
Békéscsaba
+36 (30) 880 3888
Észrevétel a hirdetéssel kapcsolatban
Egy ingatlanos naplója