Eladó kis üzlethelység, számos lehetőséggel!

7276 Nyomtatás Ajánlás Facebook

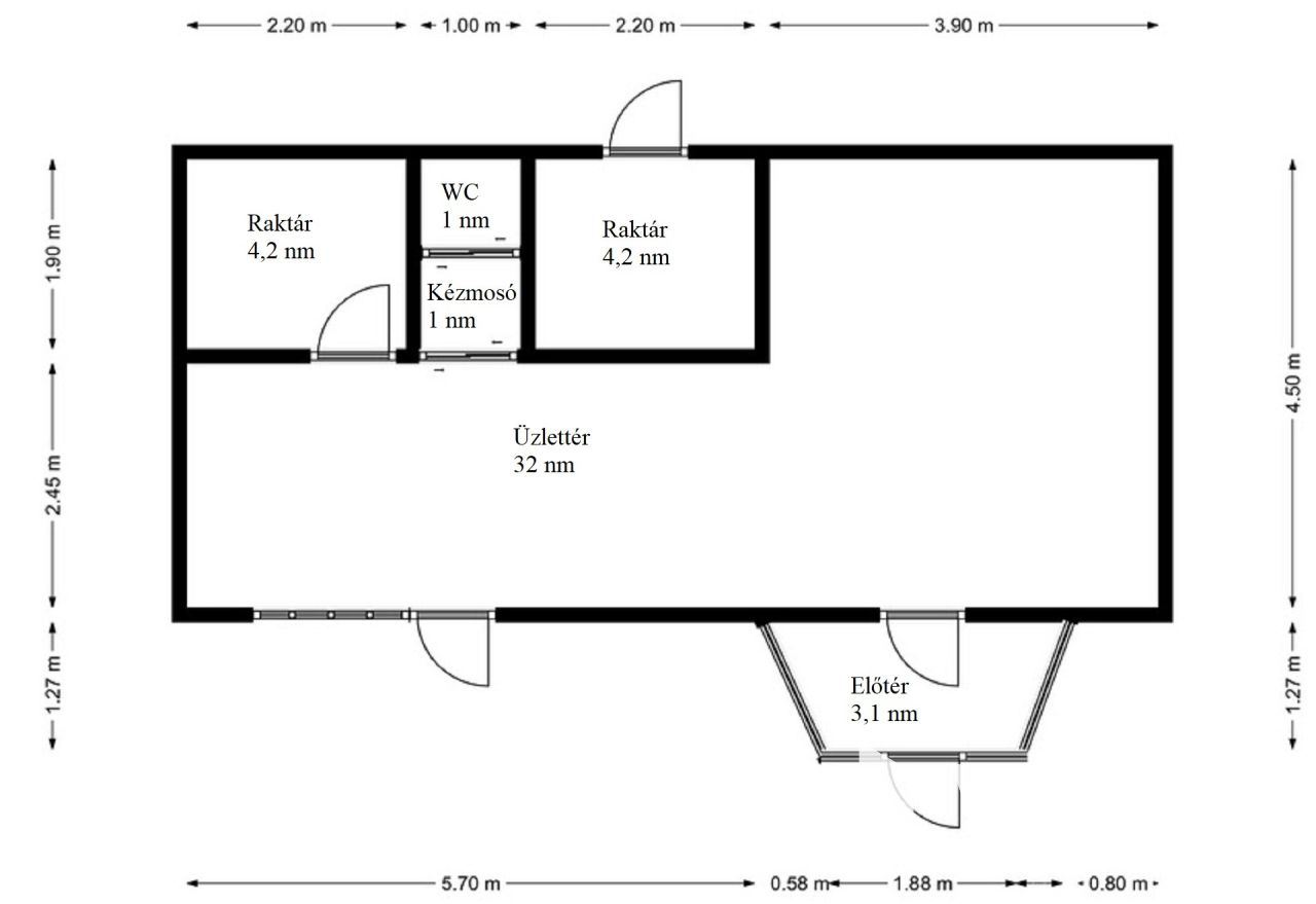
Nagykanizsa forgalmas utcájában, vált eladóvá ez a jelenleg is üzemelő, kis üzlethelység. (Kisbolt)
A tulajdonos igény szerint akár a teljes belső felszereléssel, berendezéssel együtt is eladja a boltot. Az üzemeltetéshez minden szakhatósági engedély rendelkezésre áll, ha az új tulajdonos ezen vállalkozást szeretné tovább vinni. A üzlettér fűtéséről és hűtéséről egy klíma gondoskodik. Gépkocsik parkoltatása, az utcán ingyenes.
Ezen ingatlanban számos más lehetőség is rejlik, igény szerint, mivel kettő külön bejárattal rendelkezik megosztható, külön bérbe adható, vagy mondjuk egy kisebb szépségszalonként is hasznosítható.
A közművek közül a gáz kivételével minden rendelkezésre áll.
Ha Ön szeretne egy saját üzletet, vagy egy jó befektetést, kedvező áron, ami hamar profitálhat, akkor ez az ingatlan kiváló választás lehet.
Megtekintés csak is előre egyeztetett időpontban lehetséges.
Iroda: Nagykanizsa Platán sor 7.

Hohl József
PRÉMIUM

Hohl József

10 éve a Városi Ingatlaniroda tagja
Régióigazgató
Nagykanizsa
+36 (30) 608 6857
Észrevétel a hirdetéssel kapcsolatban
Egy ingatlanos naplója