Debrecen Belvárosi 4 Szobás Szuper Albérlet!!!

1035 Nyomtatás Ajánlás Facebook

**Kiadó 4 Szobás Panel Lakás Debreceni Belvárosban!**

Szeretne egy modern, igényesen felújított otthonba költözni, ahol minden kényelem adott? Akkor ne keressen tovább! Kiadó egy teljesen felújított, berendezett és felszerelt panel lakás Debrecen központjában, a Belvárosban.

**Főbb jellemzők:**
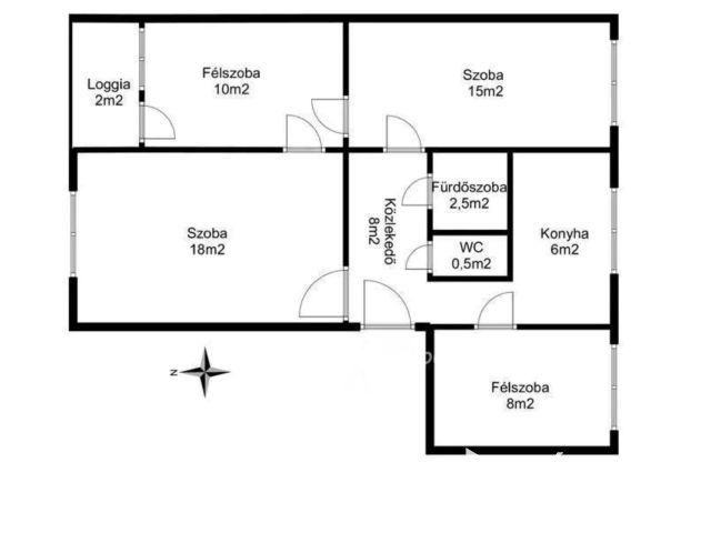
- **Alapterület:** 68 m²
- **Szobák száma:** 4 szoba, így tökéletes választás családoknak vagy akár iroda kialakítására is.
- **Fürdőszoba:** 1 db, külön WC-vel.
- **Épület:** 4 szintes, a lakás az első emeleten helyezkedik el.
- **Tervezés:** Redőnyökkel és szúnyoghálóval ellátott új nyílászárók garantálják a nyugalmat és a kényelmet.
- **Modern felszereltség:** Klíma, új villamoshálózat, és optikai internet kábel biztosítja a korszerű életvitel feltételeit.
- **Tárolás:** Beépített szekrények segítségével a tárolás sosem volt ilyen egyszerű.
- **Terasz:** Az erkély ideális hely a reggeli kávézásra vagy esti pihenésre.

A lakás alacsony fenntartási költségeinek köszönhetően pénzt takaríthat meg, miközben élvezi a belvárosi élet előnyeit. Kitűnő közlekedési kapcsolatokkal rendelkezik, így bárhová könnyedén eljuthat. A közeli belváros pezsgő élete, éttermek, boltok és kulturális programok széles választéka csak egy karnyújtásnyira!

Ne hagyja ki ezt a kivételes lehetőséget!

További információkért és megtekintésért keressen bizalommal!
TRIPSÓ TIBOR
+36 30 942 5373
Prémium ingatlanértékesítő
Városi Ingatlaniroda
Debrecen

Tripsó Tibor
PRÉMIUM

Tripsó Tibor

10 éve a Városi Ingatlaniroda tagja
Ingatlanértékesítő
Debrecen
+36 (30) 942 5373
Észrevétel a hirdetéssel kapcsolatban
Egy ingatlanos naplója