Családi ház Salgótarjánban

1294 Nyomtatás Ajánlás Facebook

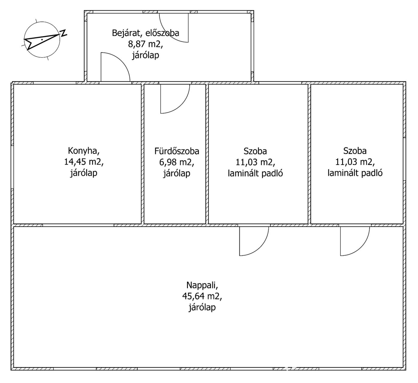
Valamikor szebb napokat látott, de jelenleg elhanyagolt, felújítandó családi ház keresi új gazdáját. A ház szép padlóburkolattal kialakított, hatalmas nappalival, két szobával, nagy konyhával, fürdőszobával, és tágas előszobával rendelkezik. A falak téglából épültek, a tető lemezes cserép héjalású. Az ablakok redőnyös, dekoratív, többszörösen hőszigetelt műanyag ablakok, sajnos a legtöbbön törött az üveg, javításra, illetve cserére szorulnak. Az ingatlan lakatlan, jelenleg nincs fűtés sem benne, de eredetileg minden közmű bekötéssel rendelkezett. Az ingatlan a felújítás után a jelenlegi vételár többszörösét fogja érni.
Baglyasalja városrészen, kedvező helyen, a helyijárati autóbusz megállójánál található, a buszjárat sűrű, a házhoz tartozó telekre gépkocsival is be lehet állni.
További információkért hívjon a +36 70 423 1304-es telefonszámon!

Butkai Ottó
PRÉMIUM

Butkai Ottó

Ingatlanértékesítő
Salgótarján
+36 (70) 423 1304
Észrevétel a hirdetéssel kapcsolatban
Egy ingatlanos naplója